Нории ленточные, цепные различной высоты и производительности и запасные части к ним в Чебоксарах
- Подробно
Нория (или элеватор) - вертикальный ковшевый конвейер, предназначенный для перемещения сыпучих, кусковых и жидких грузов. Основными видами являются ленточные и цепные нории, различающиеся тяговыми элементами и принципом реализации приводных компонентов.
Ленточная нория - самое распостраненное устройство для транспортировки зерновых культур. Основным тяговым органом является приводной барабан, который в зависимости от высоты нории и ее производительности может быть выполнен гладким, решетчатым ("беличье колесо") и футерованным (для улучшения сцепных свойств поверхностей барабана и ленты). Грузонесущим элементом является лента (норийный ремень) с ковшами. Расстояние между ковшами и их тип (полимерный, штампованный, сварной) определяется типом груза и условиями работы.
Принцип работы предельно прост - засыпание груза происходит в нижний лоток нории, расположенный в "башмаке", где груз попадает на ленту с ковшами, идущую непрерывным потоком. Далее ковши перемещаются по вертикали до "головки" нории, откуда при опрокидывании груз высыпается для дальнейшей транспортировки в приемный бункер или самотек. Цепная нория применяется в основном для более тяжелых условий работы, либо же в условиях, когда использование ленты является нецелесообразным - высокие температуры (более 200°С), высокоабразивные грузы с насыпной плотностью более 2000 кг/м³.
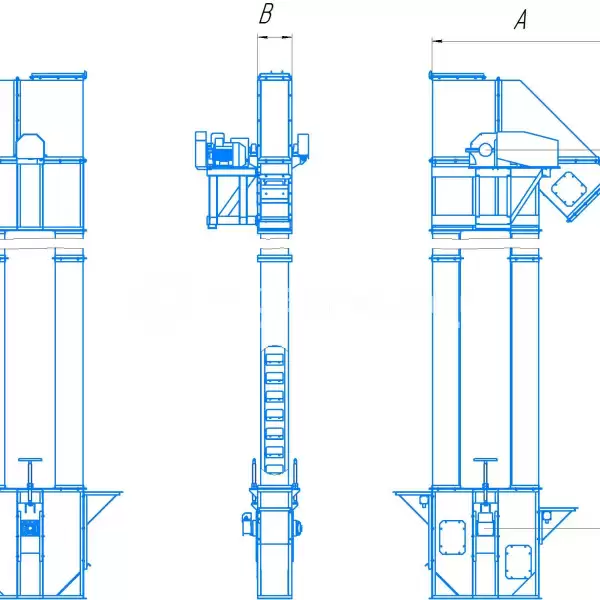
Основным тяговым органом является наборная приводная звездочка с фрезеровкой под звенья цепи. При работе в тяжелых условиях рекомендуется использовать сварные ковши с толщиной металла более 3 мм и усилением переднего края. Компоновка нории вне зависимости от исполнения представляется собой два основных элемента и набор промежуточных. Основные части нории - это верхняя часть ("головка", или приводная станция) и нижняя часть ("башмак", или натяжная станция). В "головке" расположен приводной барабан с мотор-редуктором и тормозом нории, а также площадка для обслуживания нории. "Башмак" — это натяжная станция с холостым барабаном и смотровыми лючками для визуального осмотра состояния нории.
Промежуточные секции - сварные короба из тонколистового металла, усиленные уголками. В отдельных случаях возможно исполнение торцевых стенок из технической резины — это дает возможность более простого удаления налипшего груза. В зависимости от требования заказчика нория может комплектоваться системами датчиков. Стандартный комплект включает в себя датчики подпора, схода ленты и обрыва ленты. Датчик подпора определяет переполнение "башмака", которое происходит в результате просыпания груза мимо несущих ковшей. Датчик схода ленты контролирует отклонение ленты в горизонтальной плоскости относительно поверхности приводного и натяжного барабанов, которое возможно при высоких динамических нагрузках.
Датчики обрыва ленты определяет момент разрыва ленты при ее крайнем износе и отключает привод нории. Для предотвращения обратного прокручивания барабана при обрыве ленты или неисправности приводной станции предусматривается наличие тормоза нории - специального храповика, который не позволяет валу нории прокручиваться в обратном направлении. Стоит отметить, что при работе в высокотемпературных режимах реализация датчиков подпора и контроля ленты невозможна, т.к. они должны быть расположены внутри корпуса нории. Единственным возможным вариантом является выносная реализация датчика обрыва ленты с помощью двух индуктивных датчиков и контроллера - момент обрыва ленты определяется по разности скоростей вращения валов приводного и натяжного барабанов. Приводным органом нории обычно является мотор-редуктор либо система из редуктора, муфт и электродвигателя с клиноременной или цепной передачей. В большинстве случаев гораздо удобнее применять мотор-редуктор, т.к. это уменьшает размеры головки нории - нет необходимости делать большую приводную станцию и быстроходную муфту электродвигателя, компоновка получается более аккуратной.
На низкопроизводительных нориях высотой до 10 метров возможно использование червячного редуктора, который позволяет отказаться от применения тормоза нории, т.к. данный тип редукторов является самотормозящимся. На больших нагрузках и высотах (более 100 тонн/час, высота от 20 метров) рекомендуется использовать конический редуктор из-за высоких эксплутационных характеристик. В остальных случаях применяются цилиндрические редукторы с соосным расположением валов редуктора и электродвигателя.
Компания ООО ТПК "ЭнергоСпектр" предлагает нории ленточные, цепные различной высоты и производительности, и запасные части к ним в Чебоксарах и Чувашской республике. Мы гарантируем высокое качество продукции, надежность и долговечность оборудования. Заказывая нории ленточные, цепные различной высоты и производительности, и запасные части к ним у нас, вы получаете надежного партнера и качественное оборудование для вашего производства.







